Пермское ар-деко
Издание: archi.ru
Дата выхода: 09.08.2024
Жилой комплекс, построенный в центре Перми по проекту мастерской «ЛАД», сочетает выбранный заказчиком стиль ар-деко с мотивами из Пермского звериного стиля. Орнамент из травертина и краснокирпичные вставки подчеркивают связь с историческими зданиями города.
Архитектор: Максим Моховиков
Мастерская: ЛАДhttp://www.ladproject.ru
Проект: Дом элит-класса “Grand House” Россия, Пермь, ул. Петропавловская, 52
Авторский коллектив:
Генеральный директор - Максим Моховиков
Руководитель проекта - Любовь Клайн
ГАП - Ольга Шумкина
Генплан - Екатерина Александрова, Мария Холкина
Архитекторы - Антон Машковцев, Савелий Гребнев, Кристина Стукова
Визуализация - Олег Солодянкин
2021 — 2022 / 2022 — 2024
Заказчик: Компания «ПМД»
Здание расположено в историческом центре Перми, насыщенном знаковыми объектами, которые определяют дух места и города. После анализа окружающей застройки авторам проекта показалось естественным отразить особенности существующих зданий в новой архитектуре. Совместив их при этом со стилем ар-деко, который заказчик выбрал как основной.

Дом элит-класса “Grand House”. Ситуационный план
© ЛАД

Дом элит-класса “Grand House”
Фотография предоставлена проектным бюро ЛАД
Светлая гамма фасадов, натуральный камень и ритм пилонов отсылают к зданиям Администрации губернатора Пермского края, ЦУМа и гостиницы «Урал». «Косичка» из травертина и краснокирпичные вставки над террасами перекликаются с фигурной кирпичной кладкой часовни святителя Стефана Великопермского и доходного дома купчихи Барановой. Металлические ограждения выполнены по мотивам Пермского звериного стиля. Референсом послужили голова медведя и трехглавая птица счастья. Медведь – доминантный образ в культуре древних племен Урала, а птица счастья – символ семейного счастья и благополучия.



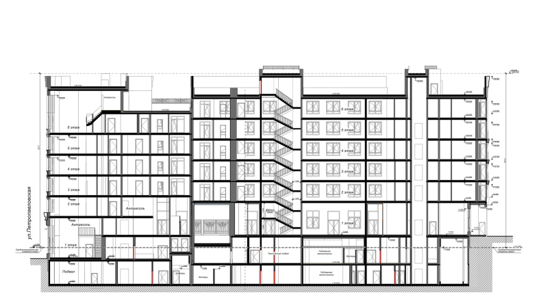
Парадный вход располагается с улицы Петропавловской и ведет в двухсветное лобби, откуда можно попасть в камерный двор. Всего в доме 88 квартир свободной планировки, в том числе с двухсветными гостиными, каминами и террасами, откуда открываются виды на достопримечательности города. В доме располагаются двухуровневый паркинг на 86 машиномест, а также 11 коммерческих помещений с панорамным остеклением, антресолями и высотой потолков более пять метров.


Архитектор: Максим Моховиков
Мастерская: ЛАДhttp://www.ladproject.ru
Проект: Дом элит-класса “Grand House” Россия, Пермь, ул. Петропавловская, 52
Авторский коллектив:
Генеральный директор - Максим Моховиков
Руководитель проекта - Любовь Клайн
ГАП - Ольга Шумкина
Генплан - Екатерина Александрова, Мария Холкина
Архитекторы - Антон Машковцев, Савелий Гребнев, Кристина Стукова
Визуализация - Олег Солодянкин
2021 — 2022 / 2022 — 2024
Заказчик: Компания «ПМД»
Описание предоставлено архитекторами
Здание расположено в историческом центре Перми, насыщенном знаковыми объектами, которые определяют дух места и города. После анализа окружающей застройки авторам проекта показалось естественным отразить особенности существующих зданий в новой архитектуре. Совместив их при этом со стилем ар-деко, который заказчик выбрал как основной.

Дом элит-класса “Grand House”. Ситуационный план
© ЛАД

Дом элит-класса “Grand House”
Фотография предоставлена проектным бюро ЛАД
Светлая гамма фасадов, натуральный камень и ритм пилонов отсылают к зданиям Администрации губернатора Пермского края, ЦУМа и гостиницы «Урал». «Косичка» из травертина и краснокирпичные вставки над террасами перекликаются с фигурной кирпичной кладкой часовни святителя Стефана Великопермского и доходного дома купчихи Барановой. Металлические ограждения выполнены по мотивам Пермского звериного стиля. Референсом послужили голова медведя и трехглавая птица счастья. Медведь – доминантный образ в культуре древних племен Урала, а птица счастья – символ семейного счастья и благополучия.



Парадный вход располагается с улицы Петропавловской и ведет в двухсветное лобби, откуда можно попасть в камерный двор. Всего в доме 88 квартир свободной планировки, в том числе с двухсветными гостиными, каминами и террасами, откуда открываются виды на достопримечательности города. В доме располагаются двухуровневый паркинг на 86 машиномест, а также 11 коммерческих помещений с панорамным остеклением, антресолями и высотой потолков более пять метров.

